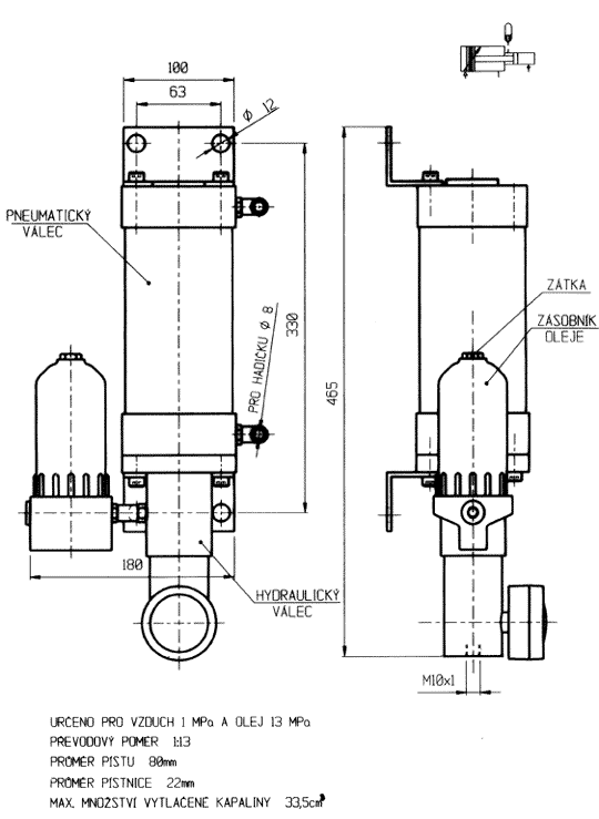
Pneu-hydraulický multiplikátor

Seznam parametrů, potřebných pro konstrukční řešení pneumaticko-hydraulického multiplikátoru:

  1. vstupní tlak vzduchu
  2. výstupní tlak oleje, případně převodový poměr
  3. množství vytlačeného oleje
  4. způsob uchycení multiplikátoru rozměry vstupních a výstupních otvorů
název objednací číslo
pneu-hydraulický multiplikátor PHM 1:13 23 304346
pneu-hydraulický multiplikátor PHM 1:24,7  
pneu-hydraulický multiplikátor PHM 1:64